Быстрый поиск обьекта по ID или номеру телефона

Введите ID или телефон

Проверить телефон посредника

Введите телефон:

Корисна інформація

Посмотреть все »
>>Купить Квартира, харьков, горизонт, героев харькова пр-т

Квартира, харьков, горизонт, героев харькова пр-т

1 302 000 грн. ($31 000)

В продаже


  • квартира, Харьков, Горизонт, Героев Харькова пр-т
  • квартира, Харьков, Горизонт, Героев Харькова пр-т
  • квартира, Харьков, Горизонт, Героев Харькова пр-т
  • квартира, Харьков, Горизонт, Героев Харькова пр-т
  • квартира, Харьков, Горизонт, Героев Харькова пр-т
Описание
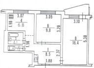
ID4405499Общая площадь46
АдресГероев Харькова пр-тЖилая площадь27
Количество комнат2Площадь кухни7
Этаж9Балконов1
Этажность9Балконов застеклено1
Цена, грн1302000Другие объекты
в этом районе:
Горизонт, Индустриальный
Продам 2 комнатную квартиру пр. Героев Харькова , 9/9, с полноценным тех. этажем, 46/27/7, состояние капитального ремонта, раздельный сан. узел, застекленный балкон
Похожие объекты

Недвижимость Харькова