Быстрый поиск обьекта по ID или номеру телефона

Введите ID или телефон

Проверить телефон посредника

Введите телефон:

Корисна інформація

Посмотреть все »
>>Купить Квартира, харьков, старая салтовка, салтовское шоссе

Квартира, харьков, старая салтовка, салтовское шоссе

1 680 000 грн. ($40 000)

В продаже


  • квартира, Харьков, Старая салтовка, Салтовское шоссе
  • квартира, Харьков, Старая салтовка, Салтовское шоссе
  • квартира, Харьков, Старая салтовка, Салтовское шоссе
  • квартира, Харьков, Старая салтовка, Салтовское шоссе
  • квартира, Харьков, Старая салтовка, Салтовское шоссе
  • квартира, Харьков, Старая салтовка, Салтовское шоссе
Описание
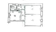
ID4446975Общая площадь41
АдресСалтовское шоссеЖилая площадь14
Количество комнат1Площадь кухни15
Этаж2Балконов1
Этажность8Балконов застеклено1
Цена, грн1680000Другие объекты
в этом районе:
Салтовский, Старая салтовка
Продам 1к. кв. 41м2 ,Старая Салтовка, .Салтовское шоссе, 2/8. В квартире сделан капитальный ремонт, остается вся мебель, техника. Дом кирпичный. Ориентир- Фр.бульвар. Торг.
Похожие объекты

Недвижимость Харькова