Быстрый поиск обьекта по ID или номеру телефона

Введите ID или телефон

Проверить телефон посредника

Введите телефон:

Корисна інформація

Посмотреть все »
>>Купить Новостройка, харьков, гагарина метро

Новостройка, харьков, гагарина метро

1 197 000 грн. ($28 500)

В продаже


  • новостройка, Харьков, Гагарина метро
  • новостройка, Харьков, Гагарина метро
  • новостройка, Харьков, Гагарина метро
  • новостройка, Харьков, Гагарина метро
  • новостройка, Харьков, Гагарина метро
  • новостройка, Харьков, Гагарина метро
  • новостройка, Харьков, Гагарина метро
Описание
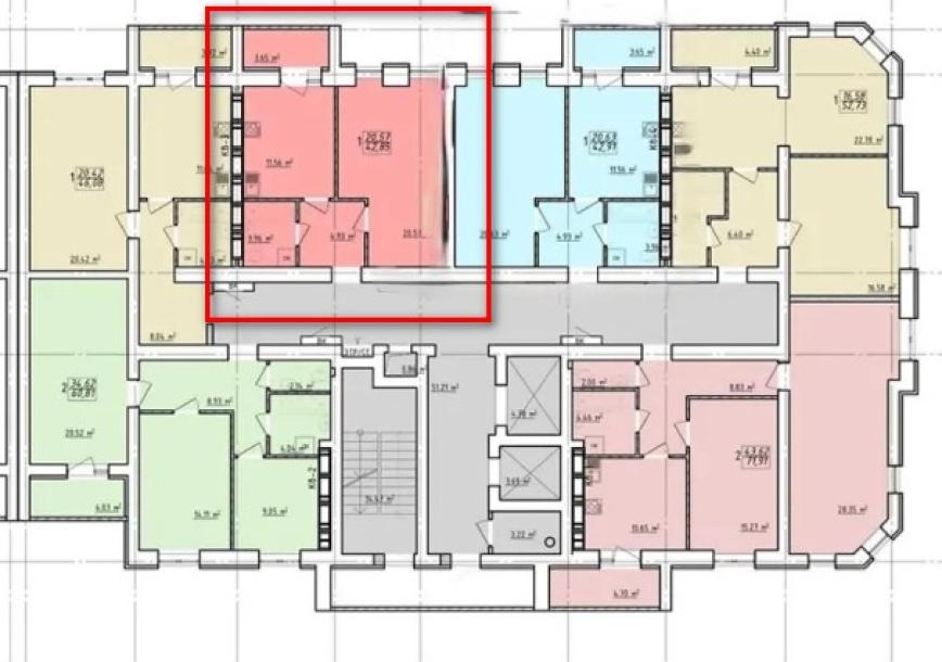
ID4415697Материал стенкирп
Адрес-Общая площадь43
Тип новостройки-Количество комнат1
Жилая площадь21Этаж13
Площадь кухни12Этажность-
Балконов1Фирма-застройщик (для новостроек)Левада-2
Цена, грн1197000Другие объекты
в этом районе:
Гагарина метро, Основянский
Продам 1 кым. квартиру в ЖК Левада 2. В будівельному стані. Будинок сданий в 2024 році. Готові до діалогу
Похожие объекты

Недвижимость Харькова